Proposed Aerial View
Image Credit: DK-CM
What is Proposed
This redevelopment on Upper Rainham Road proposes
restoration and improvements to the existing Grade II
listed Rom Skatepark, a new building including skatepark
facilities and community spaces, and new homes on the
current Cardrome site designed to be in keeping with
the character and scale of the surrounding residential
streets. This new neighbourhood will include around 280
townhouses and flats ranging from one- to four- bedroom
units, with an affordable housing provision of 50%.
1670sqm of flexible community/commercial use will be
provided.
The homes will be arranged to improve connections
between Upper Rainham Road, Rom Skatepark, and the
green spaces beyond, with diverse housing types including
genuinely affordable homes. The residential element will
replacing the existing commercial uses with homes that
better suit the residential context of the area.
Existing Aerial View
Image Credit: DK-CM
Improving the Cardrome
The Cardrome site has served the local area since the 1950s. Today, much of the site is occupied by a petrol station, car showroom, and other commercial uses that are underinvested and are not best serving the residential surroundings. These uses do not complement the setting of the neighbouring homes and the adjacent Chase Nature Reserve. These proposals would bring the site into appropriate use and form connections between Upper Rainham Road and the nature reserve.
Why This Approach
Restoring and operating a Grade II listed skatepark requires substantial investment. Without the wider site redevelopment, the skatepark would remain on the Heritage at Risk Register. Bringing forward development across the wider site provides the opportunity to secure the skatepark’s future whilst delivering much needed homes for the local community. This integrated approach ensures the heritage asset can be properly restored and maintained for future generations, whilst transforming the underused Cardrome site into a vibrant neighbourhood that benefits everyone.
Proposed Skatepark Addition
Image Credit: DK-CM
Proposed Masterplan
Image Credit: DK-CM
Image Credit: DK-CM
Image Credit: DK-CM
A Living Legend
Rom Skatepark is more than a local amenity, it’s a piece of British
cultural history. Since opening in August 1978, this Grade II listed site
has inspired generations of skateboarders, BMXers, and riders from
across the world.
Designed by Adrian Rolt of G-Force and built in seamless pressurised
concrete, Rom Skatepark is recognised as the best and most
completely preserved purpose-built skatepark from the pioneering
era of British skateboarding. Its seven distinctive features (the pool,
moguls, performance bowl, slalom run, snake run, four-leaf clover, and
half-pipe) remain faithful to the Californian prototypes that shaped
the sport.
Years of underfunding, the devastating 2018 fire, and the challenges
of the pandemic have taken their toll. Today, the skatepark sits
on Historic England’s Heritage at Risk Register, requiring urgent
investment to repair and conserve this nationally significant site.
The Current Moment
Thanks to the dedication of volunteers, Rom Skatepark reopened
for weekend sessions in May 2024. This reopening demonstrates the
enduring passion for this special place.
These proposals represent a commitment to restore Rom Skatepark. In
doing so, and by introducing a modern covered facility adjacent to the
skatepark, it will remove Rom from the Heritage at Risk Register and
underpin the skatepark’s long-term viability. These actions will ensure
Rom can thrive for decades to come, serving both the local and wider
urban sports communities.
Your Rom, Your Voice
These proposals have been shaped by conversations with Rom users, volunteers, and local stakeholders. Now we want to hear from you. Please take a moment to share your thoughts, memories, and ideas on the ‘Have Your Say’ board.
Timeline
Image Credit: DK-CM
Views
Image Credit: DK-CM
View towards the existing Rom Skatepark and the new skatepark building.
Image Credit: DK-CM
Inside the new skatepark building, looking towards the cafe and community facilities.
Supporting a Sustainable Future
The Grade II listed skatepark will be sensitively restored
to celebrate its historic, cultural and design significance
from the 1970s. To ensure Rom Skatepark can thrive for
generations to come, it needs modern facilities that
support both its heritage and its community.
The new building has been designed in response to
conversations with Rom users, volunteers, and local
stakeholders. It would provide the essential facilities
lost in the 2018 fire whilst creating opportunities for the
skatepark to become financially self-sufficient, ensuring its
long-term future.
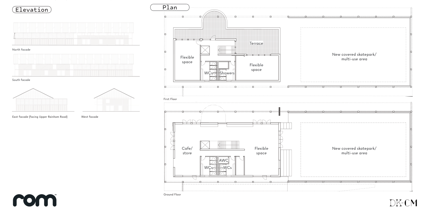
What the Building Would Include
The building proposal brings together facilities that serve the skating community and the wider neighbourhood:
Core Skatepark Facilities
• Indoor street skatepark addressing Upper Rainham
Road, showcasing the activity and creating a
welcoming presence
• Reception and shop for equipment and essentials
• Changing rooms and toilets
• Dedicated entrance creating a clear gateway to
the site
• Car-parking facilities
Community Spaces
• Café with views across the outdoor skatepark,
providing a place to watch, socialise and relax
• Two flexible bookable rooms suitable for community
groups, workshops, clubs, and events
• Outdoor terrace overlooking the listed skatepark
How It Works
The indoor skatepark extends Rom Skatepark’s year-round
offer, allowing it to stay open during winter months and
wet weather. The café and bookable spaces create a
welcoming environment for spectators, families, and the
local community, whilst generating income to support
the ongoing maintenance and operation of the historic
outdoor skatepark.
This approach follows successful models at skateparks
across the UK, where diversified facilities create
sustainable venues that serve both dedicated users and
the wider community.
Design Approach
The building is designed to be sited in a considered way, respectful of the residential context. Large windows allow views in and out, creating natural surveillance and connecting the indoor and outdoor skating areas. The materials and design respond to the local character whilst celebrating Rom Skatepark’s unique identity.
Image Credit: DK-CM
Image Credit: DK-CM
Shared street with a swale, bordering the Chase Nature Reserve.
Your Voice Matters
These proposals have been shaped by conversations with
Rom users, volunteers, and local stakeholders over
the past months. Now we want to hear from you.
Whether you’ve been skating at Rom Skatepark since 1978,
live nearby, or are visiting for the first time, your thoughts,
memories, and ideas will help inform the final proposals.
How to Share Your Views
Please take a sticky note and write your thoughts in
response to any of the questions below. Add your note
to this board so others can read and be inspired by your
contributions.
Alternatively, you can scan the QR code below to fill out
the online feedback form or pick up a leaflet and send in
your thoughts.
Development’s Key Principles
Four principles have guided the design of the proposals:
1. A Desirable and Inclusive Neighbourhood
Homes designed to respond to the scale, character and materials of surrounding properties, creating a natural extension that connects seamlessly with the existing community. The development will provide diverse housing types to meet local need whilst enhancing the area’s character.
2. Open and Connected Spaces
Abundant green spaces with enhanced biodiversity, connecting to the Chase Nature Reserve through new pedestrian routes and sustainable transport links. Green corridors will provide climate resilience, support urban cooling, and manage surface water sustainably. The landscape strategy will deliver significant biodiversity improvements and increased public accessibility.
3. Active and Playful Uses
Anchored by the distinctive Rom Skatepark, the site will provide diverse community facilities and recreational opportunities for residents of all ages and abilities. The skatepark building will offer spaces available for community groups, social enterprise, and local activities.
4. Sustainable and Climate Resilient Development
The development will incorporate sustainable construction methods, renewable energy systems, and integrated drainage features. Green roofs, urban trees, and permeable surfaces will improve air quality and create resilient ecosystems that adapt to climate change.
Community Benefits
The proposals aim to deliver benefits for both existing and
new residents:
• A restored and thriving Rom Skatepark, removed from the Heritage at Risk Register
• Community facilities within the new skatepark building available for local use
• Improved public realm and better connections across the site
• Two new pedestrian routes to Chase Nature Reserve with enhanced biodiversity
• Enhanced green infrastructure providing urban cooling and flood management
• Transformation of an underused site into a place that contributes positively to the area
• Genuinely affordable homes meeting local housing need
Image Credit: DK-CM
View of the new Rom Skatepark building from Upper Rainham Road.
Image Credit: DK-CM
A playable landscape weaving through the neighbourhood.
Question Prompts
About Rom Skatepark’s History:
• How often do you go to Rom Skatepark?
• If you have used the skatepark before, please share
your memories, stories, or what makes this place
special.
About the New Skatepark Building:
• What activities or facilities would you like to see in the community spaces?
• How likely would you be to visit the new Rom Skatepark building?
• Would it be important to you for this new space to be welcoming to children and families?
About the Wider Cardrome Site:
• What community or commercial uses would you like to see in this new mixed-use development?
• How often do you go to The Chase Nature Reserve?
• How likely would you be to use a new pedestrian path connecting Upper Rainham Road and the nature reserve?
• Share your thoughts on the wider proposals and how the site could better connect to surrounding green spaces.
What Happens Next
Your feedback will be carefully reviewed and will help shape the proposals as they develop.
When the time comes to submit a formal planning application to Havering Council, there will be further opportunities for the community to comment through the official planning process.
Want to Stay Informed?
Visit Rom Skatepark’s clubhouse to stay informed about the project progress and future consultation opportunities.
Online Form
